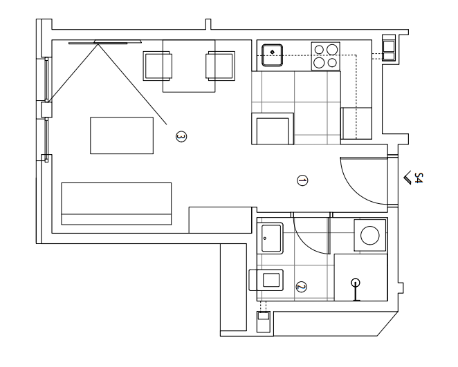
JEDNOIPOSOBAN STAN 32.07m2
01.
Ulaz
2.47m2
02.
Kupatilo
4.00m2
03.
Dnevni boravak, kuhinja i trpezarija
19.35m2
04.
Terasa
6.25m2Total:
32.07m2
