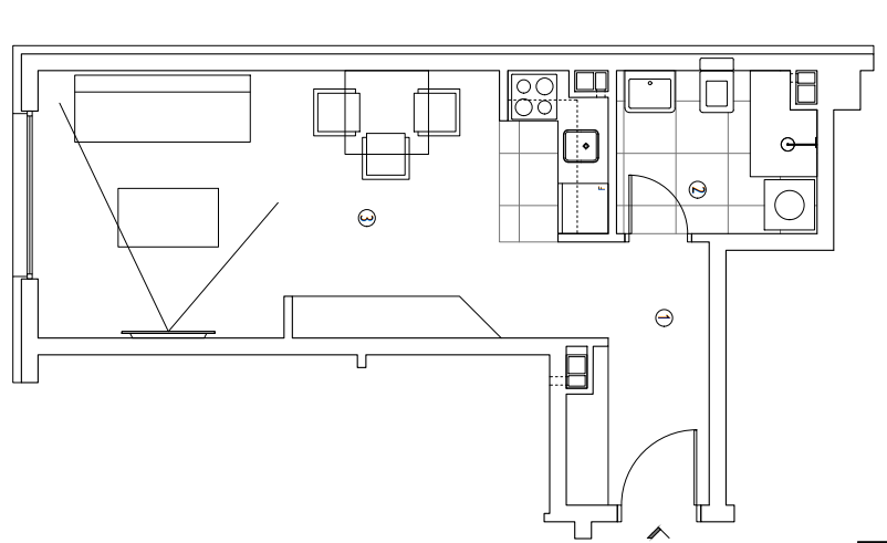
JEDNOIPOSOBAN STAN 35.93m2
01.
Ulaz
5.30m2
02.
Kupatilo
4.53m2
03.
Dnevni boravak, kuhinja i trpezarija
20.83m2
04.
Terasa
5.27m2Total:
35.93m2
