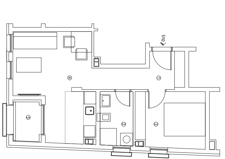
JEDNOIPOSOBAN STAN 39.04m2
01.
Ulaz
3.09m2
02.
Kupatilo
4.17m2
03.
Spavaća soba
9.07m2
04.
Dnevni boravak, kuhinja i trpezarija
20.09m2
05.
Terasa
2.62m2Total:
39.04m2
